top of page
Derwent Avenue
Single-storey rear extension

Project type: Single-storey rear extension
Project value: £100k
Borough: London Borough of Brent
Our involvement: Concept Design, Developed Design, Planning, Technical Design, Building Control
Feature: Modernise and optimise the space, improve the inside/outside relationship
BEFORE

EXISTING FLOOR

EXISTING REAR ELEVATION

EXISTING PHOTO

EXISTING FLOOR
1/5
AFTER

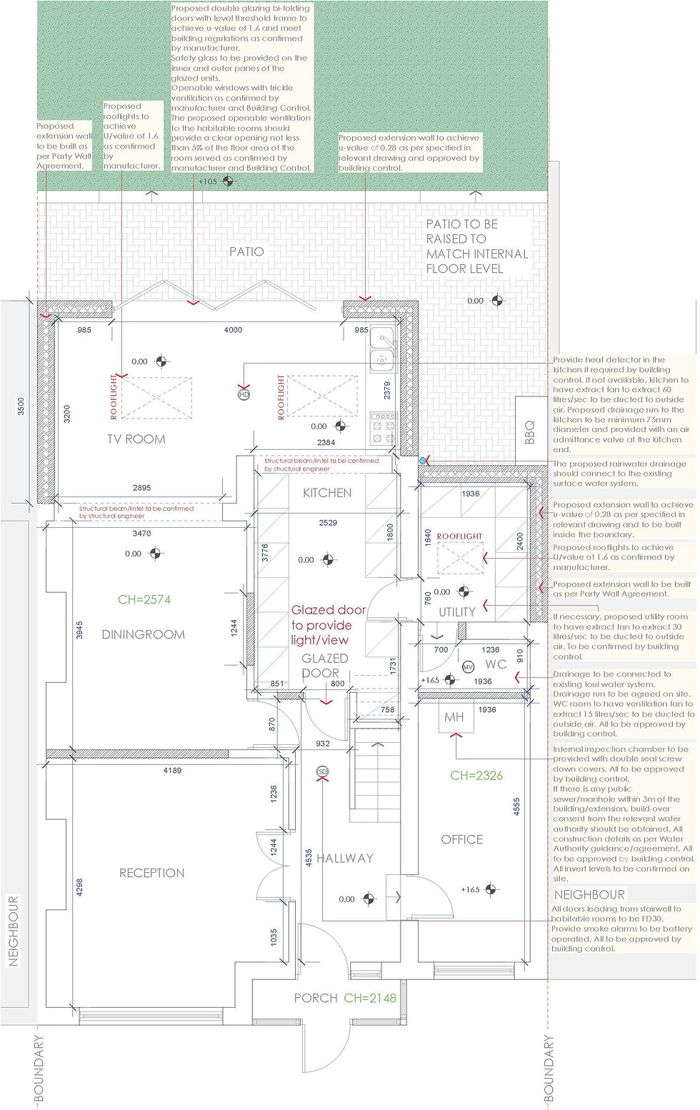
PROPOSED FLOOR

PROPOSED REAR ELEVATION

PROPOSED PHOTO

PROPOSED FLOOR
1/5
bottom of page