top of page
Scarborough Road
Loft extension and balcony creation

Project type: Loft extension and balcony creation
Project value: £50k
Borough: London Borough of Islington
Our involvement: Concept Design, Developed Design, Planning,
Feature: Optimise space, create balcony
BEFORE

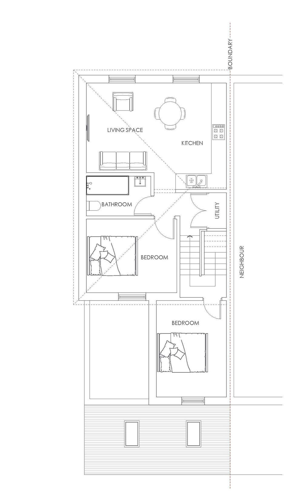
EXISTING FLOOR PLAN

EXISTING LOFT

EXISTING SIDE ELEVATION

EXISTING FLOOR PLAN
1/4
AFTER

PROPOSED FLOOR PLAN

PROPOSED LOFT

PROPOSED SIDE ELEVATION

PROPOSED FLOOR PLAN
1/4
bottom of page